Coup de coeur ! Attique à Schlierbach
- GLD Promotion
- 18 déc. 2022
- 1 min de lecture
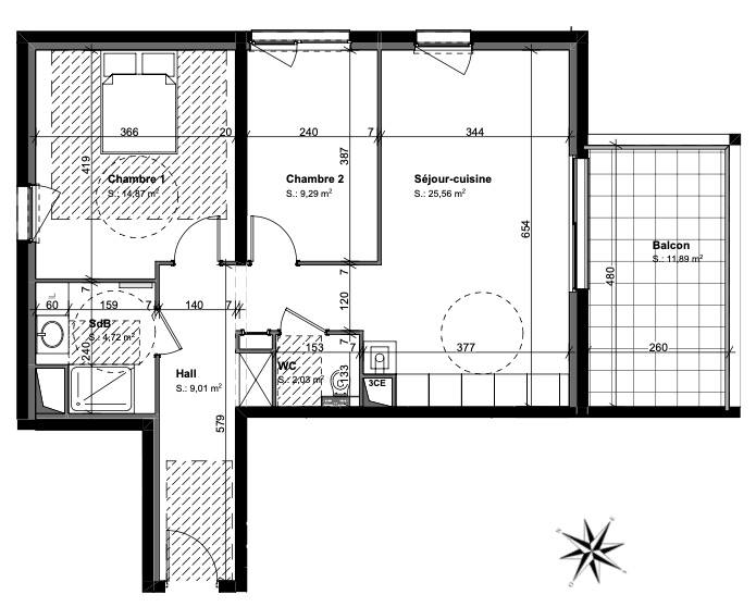
À Schlierbach, résidence « Le Domaine du Lys » Magnifique attique de 3 pièces en exclusivité chez notre partenaire Lutimmo Prenez RDV au 03 89 62 78 68 ou contact@lutimmo.fr










Commentaires